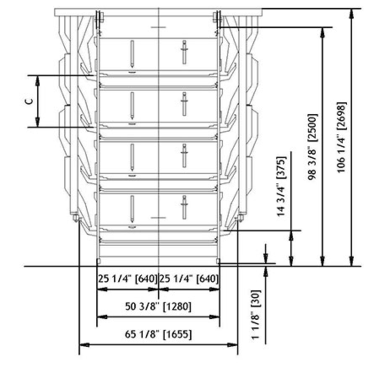
Este sistema equipado con divisores de malla que permiten una iluminación y ventilación óptimas
a.rosales@tecnopoultry.me
s.noguez@tecnopoultry.me
Octavio Paz 4117
El Molino, Tehuacan, Puebla.